Suyalı Villas

  • Year : 2017
  • Location : Muğla
  • Category : Housing
  • Award :
  • Ali Sinan : 1
  • Elif Yılmaz :
  • Nehir Bera Biçer :
  • Ayşegül Aktaş :
  • Başak Kalfa :
  • Batuhan Çelebi :
  • Beliz Bediz Sinan :
  • Buğrahan Baran :
  • Bünyamin Çam :
  • Cem Dursun :
  • Coşan Karedeniz :
  • Dicle Taşkın :
  • Dinçer Dönmez :
  • Esra Bor :
  • Farzad Golghasemi :
  • Gökhan Yıldırım :
  • Halil Baha Akyar :
  • Hanie Fatouraee :
  • Hasan Okan Çetin :
  • Hüseyin Kezer :
  • İrem Özkan :
  • Kadri Atabaş :
  • Mehmet Çıkrık :
  • Murat Memlük :
  • Nuran Özkam :
  • Okan Mutlu Akpınar :
  • Olgu Çalışkan :
  • Olsi Kafeja :
  • Özlem Kaya :
  • Renato Bici :
  • Seda Özçelik :
  • Sercan Deniz :
  • Sevgi Çalı :
  • Sonat Özcivanoğlu :
  • Utku Karakaya :
  • Yiğit Acar :
  • Yusuf Fırat Kılıç :
  • Çağılsu Kardeş :
  • İbrahim Ekinci :

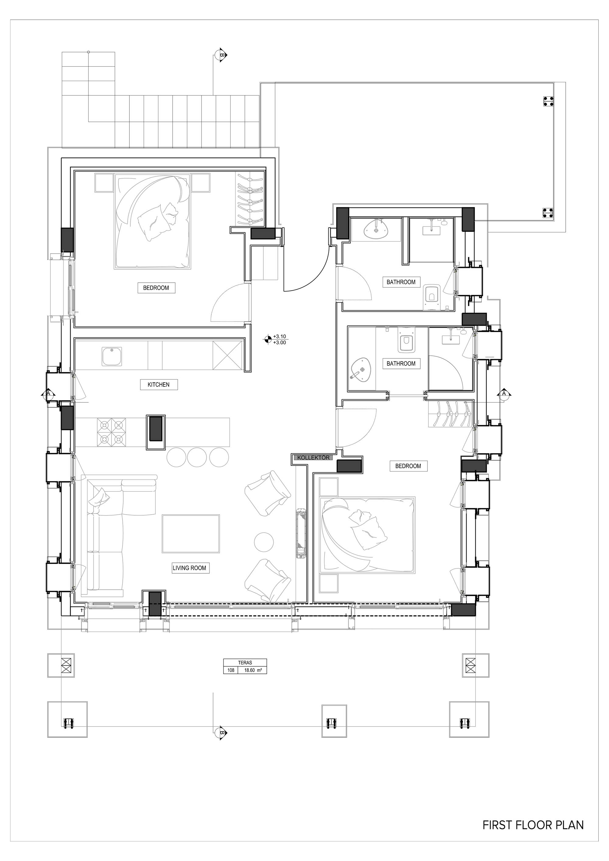
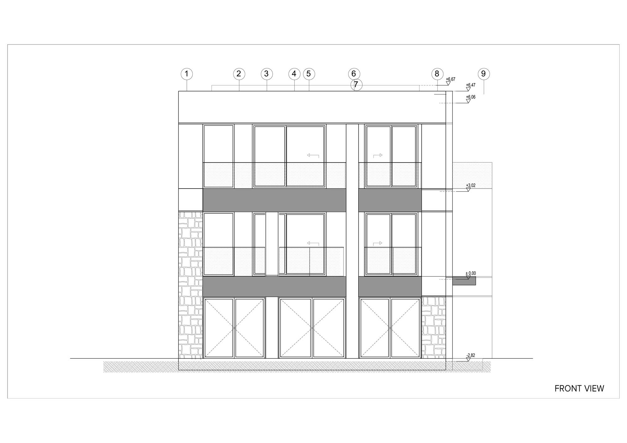
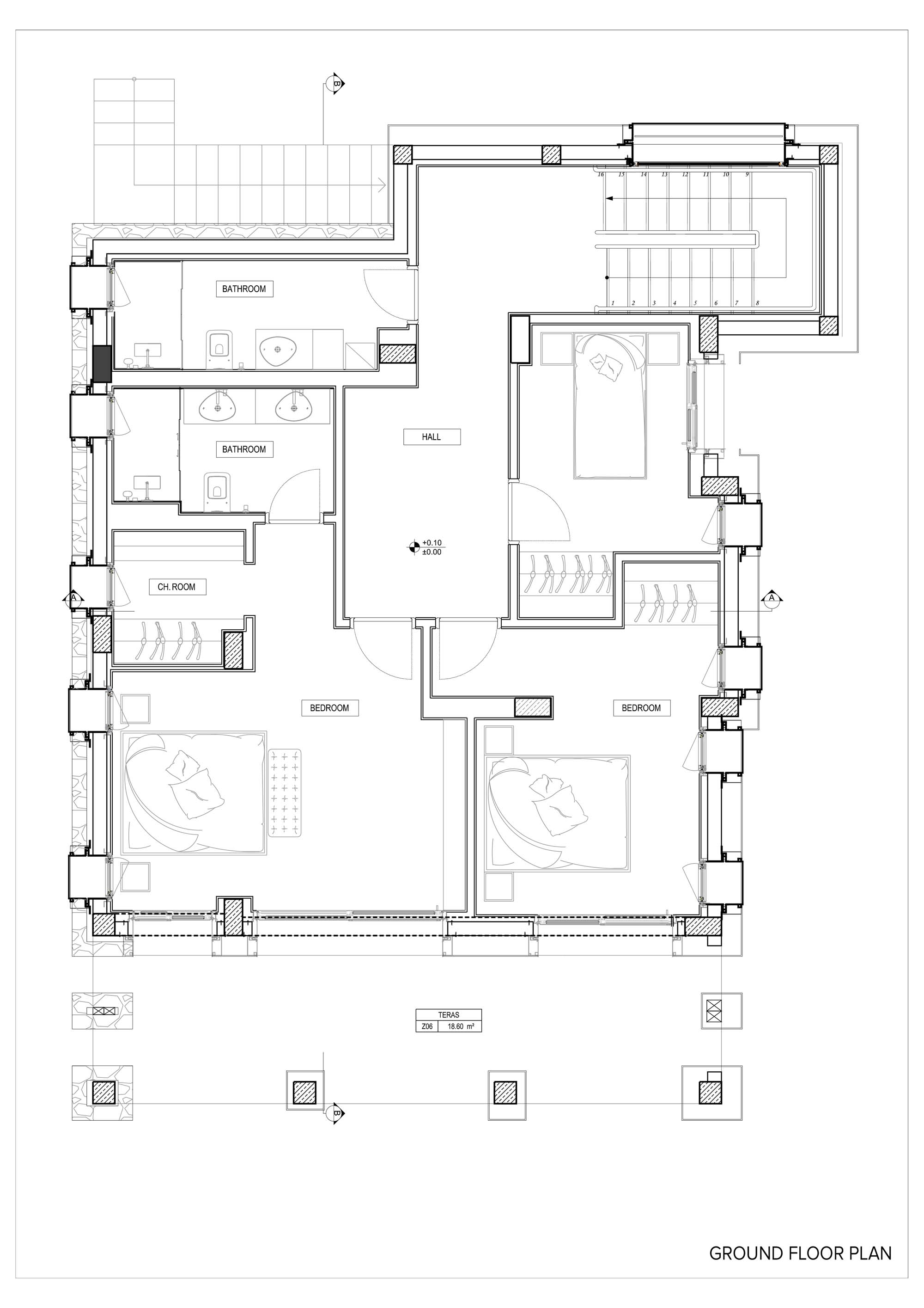
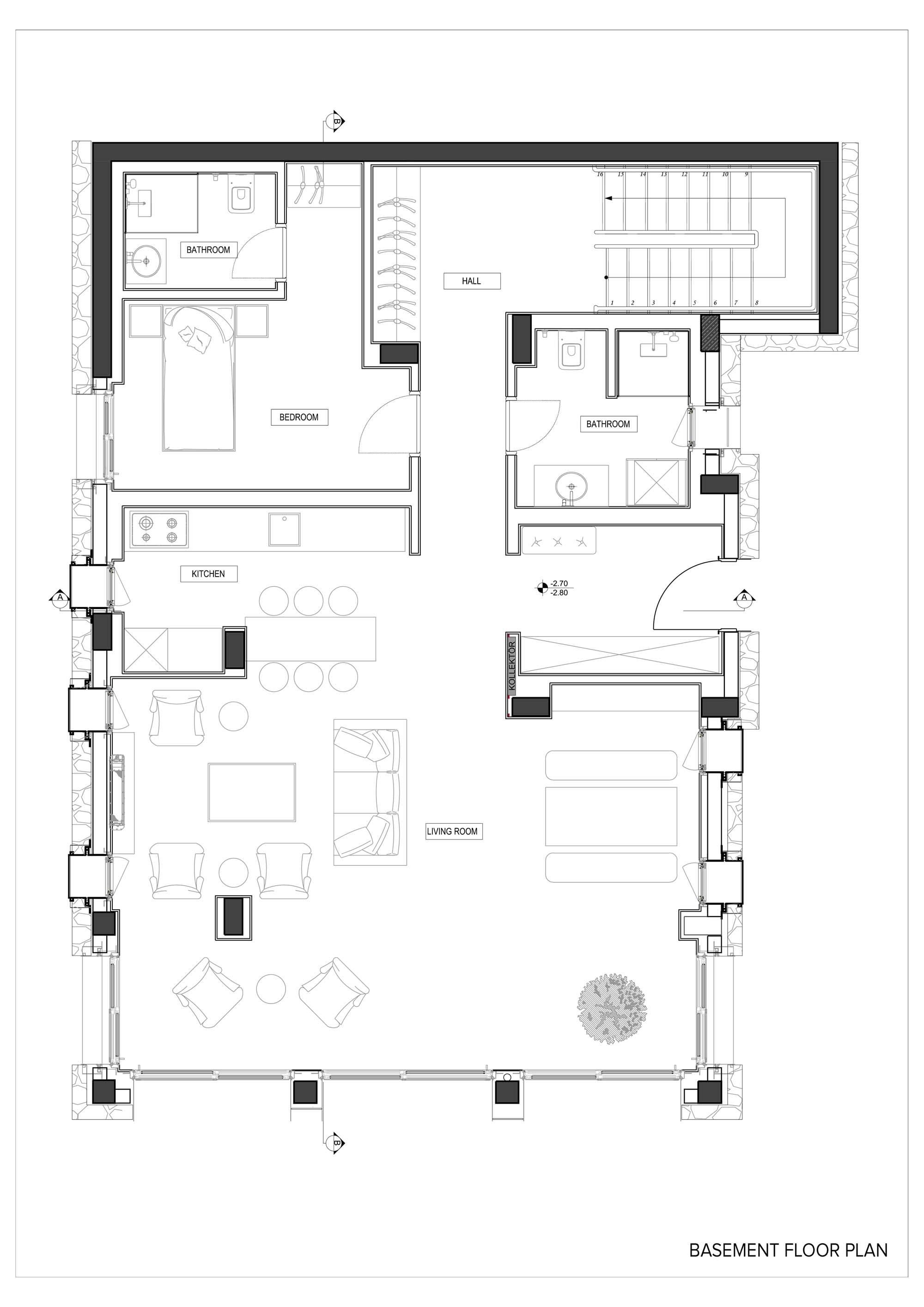
Project . Suyali Villlas
Client . Eskon Gayrimenkul Yatırım
General contractor . İki Mimar Architecture & Consultancy
Area . 6500 m²  Site . Bodrum / Muğla  Year . 2017
Program . Housing
Project Team . Ali Sinan, Berkay Şeşen, Dilara Numanoğlu, Suha Özcan Afacan

 

The project, consisting of 13 buildings and 4 different types of housing, has ensured all the villas to have a unique view of the bay, by utilizing the vertical form of the land extending from the sea towards the slope. The design, remaining true to Bodrum’s well-known white colored architectural texture while skillfully applying Bodrum’s natural stones, has been constructed in cubic form structures in order to get the most out of the land. An additional feature of the design was to form a bond with the surrounding nature by restricting the use of natural stones solely in the base level and thus obtaining a two storey appearance of the three storey buildings.  While achieving the widest possible uninterrupted view of the landscape through large openings in the front façades, narrow and long glass openings on the side façades are planned to break the mass effect of the cubic structure. At the same time, shadow variations of the different hours of the day were moved to the interior.

 

Top